Volg ons
D
Onder bod

J.J. Wernerstraat 23

€ 365.000,- k.k.
97 m²
/  215 m²
3 slaapkamers

Bent u op zoek naar een woning waar u direct in kunt trekken zonder te verbouwen? Deze hoekwoning aan de J.J. Wernerstraat 23 is in de afgelopen 4,5 jaar door de huidige eigenaren volledig en smaakvol gemoderniseerd.

Deel op social media:

Kenmerken

Bouwjaar: 1980
Energielabel: D
Type ketel: AWB
Jaar ketel: 2015
Soort: Eengezinswoning
Type: Hoekwoning
Woonoppervlakte: 97 m²
Perceeloppervlakte: 215 m²
Inhoud: 388 m³
Aantal kamers: 4
Aantal slaapkamers: 3
Aantal woonlagen: 2
Eigendom: Eigen grond
Bouwvorm: Bestaande bouw
Ligging: Oost

Isolatie: Dakisolatie, Gedeeltelijk dubbel glas, HR++ glas

Dak type: Zadeldak

Dak materialen: Pannen

Tuin: Zijtuin, Achtertuin, Voortuin

Berging / schuur: Schuur

Parkeerfaciliteiten: Openbaar parkeren

Voorzieningen: Verwarming, Elektra, Water

Bijzonderheden: 8 zonnepanelen

Bouwjaar:
1980
Energielabel:
D
Soort:
Eengezinswoning
Type:
Hoekwoning
Woonoppervlak:
97 m²
Perceeloppervlak:
215 m²
Inhoud:
388 m³
Aantal kamers:
4 kamers
Aantal slaapkamers:
3 slaapkamers
Aantal woonlagen:
2 verdiepingen
Eigendom:
Eigen grond
Bouwvorm:
Bestaande bouw
Ligging:
Oost
Dak type:
Zadeldak
Dak materialen:
Pannen
Tuin:
Zijtuin
Achtertuin
Voortuin
Parkeerfaciliteiten:
Openbaar parkeren
Voorzieningen:
Verwarming
Elektra
Water
Isolatie:
Dakisolatie
Gedeeltelijk dubbel glas
HR++ glas
Isolatie:
Dakisolatie
Gedeeltelijk dubbel glas
HR++ glas
Bijzonderheden:
8 zonnepanelen

Omschrijving

Bij de renovatie is nagenoeg alles aangepakt. De begane grond beschikt over een nieuwe, luxe keuken met moderne inbouwapparatuur. Aansluitend bevindt zich de praktische bijkeuken met de opstelling voor het witgoed. De gehele woning is modern en consistent afgewerkt, wat zorgt voor een rustige en frisse uitstraling.

 

Ook de sanitaire ruimtes zijn niet achtergebleven: de badkamer en het toilet zijn compleet vernieuwd en uitgevoerd in een eigentijdse, luxe stijl.

 

Op het gebied van verduurzaming is de woning klaar voor de toekomst. Er zijn 8 zonnepanelen geïnstalleerd en de meterkast is volledig vernieuwd.

 

De achtertuin is onderhoudsvriendelijk ingericht en voorzien van nieuwe schuttingen. Tevens is er een extra houten schuur geplaatst, wat zorgt voor volop bergruimte voor fietsen en tuingereedschap.

 

De woning is gelegen in het karakteristieke dorp Barsingerhorn. Dit dorp staat bekend om zijn rustige, landelijke sfeer en historische lintbebouwing. Ondanks de rustige ligging bevindt u zich op korte afstand van Schagen. Hier vindt u alle nodige voorzieningen, zoals een uitgebreid winkelaanbod, scholen, horeca en een NS-station.

 

 

 

 

 

 

 

 

 

 

 

 

 

 

 

Indeling:

 

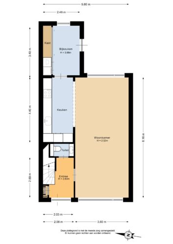
Begane grond
Entree, hal, meterkast, toiletruimte met vrijdragend toilet en fontein. Lichte doorzon woonkamer voorzien van laminaat. Luxe en moderne open keuken met diverse inbouwapparatuur zoals: Koelkast, vrieskast, elektrische oven, 5-zones inductie kookplaat, vaatwasmachine en Quooker. Bijkeuken met opstelling voor de wasmachine en droger.

 

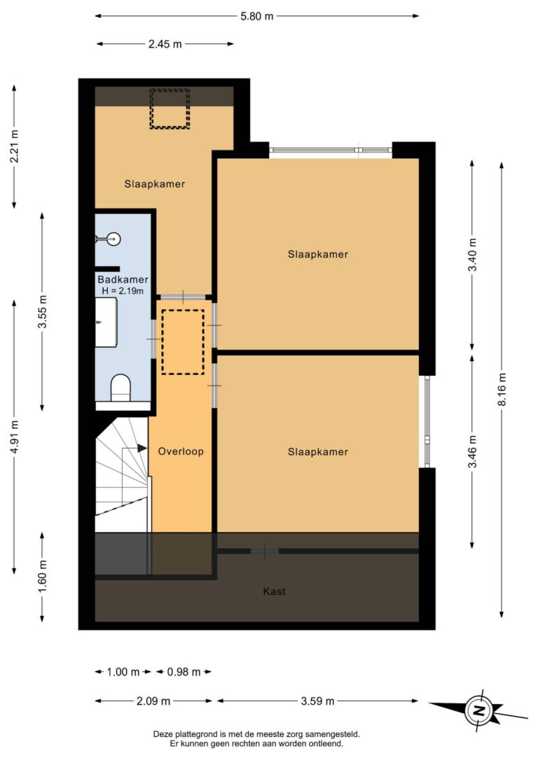
Eerste verdieping
Overloop met bergruimte, 3 slaapkamers en een inpandige badkamer. De badkamer is gemoderniseerd in 2021 en voorzien van een inloopdouche, vrijdragend toilet, wastafelmeubel en een designradiator.

 

Bergzolder
De bergzolder is via een vlizotrap te bereiken. Hier treft u de CV-ketel opstelling en voldoende bergruimte voor al uw niet dagelijkse spullen.

 

Tuin
Ruime achtertuin met nieuwe schutting. Houten schuur in de achtertuin met elektrische segmentdeur met loopdeur en een wasbak.

 

Al met al een super nette hoekwoning met 3 slaapkamer waar je zo in kunt. Interesse in een bezichtiging? Neem contact op voor het inplannen van een afspraak.

 

Goed om te weten:

 

– Meterkast en bedrading ca. 2021 vernieuwd
– Luxe keuken (2021)
– Modern toilet (2021)
– Moderne badkamer (2021)
– 8 zonnepanelen (2024) (4 voor en 4 achter)
– Schuur in de tuin met elektrische segmentdeur en loopdeur
– CV-ketel (2015)

Play Video

Bezichtiging / meer info

J.J. Wernerstraat 23,

Barsingerhorn

Wil je meer informatie over dit pand of een bezichtiging plannen? Vul het formulier in en wij nemen contact met je op.