Volg ons
D
Te koop

Reigershof 19

€ 350.000,- k.k.
139 m²
/  215 m²
4 slaapkamers

Hoekwoning met 4 slaapkamers, garage en separate berging in de Waldervaart.

Deel op social media:

Kenmerken

Bouwjaar: 1973
Energielabel: D
Type ketel: Remeha
Jaar ketel: 2024
Buurt: Waldervaart
Aanvaarding: In overleg
Soort: Eengezinswoning
Type: Hoekwoning
Woonoppervlakte: 139 m²
Perceeloppervlakte: 215 m²
Inhoud: 495 m³
Aantal kamers: 5
Aantal slaapkamers: 4
Aantal woonlagen: 3
Eigendom: Eigen grond
Bouwvorm: Bestaande bouw
Ligging: Noord

Isolatie: Muurisolatie, Dubbel glas

Dak type: Zadeldak

Dak materialen: Pannen

Tuin: Achtertuin, Voortuin

Berging / schuur: Vrijstaande stenen berging

Parkeerfaciliteiten: Openbaar parkeren, In eigen garage

Garage: Aangebouwd steen

Voorzieningen: Verwarming, Elektra, Water

Bouwjaar:
1973
Energielabel:
D
Buurt:
Waldervaart
Aanvaarding:
In overleg
Soort:
Eengezinswoning
Type:
Hoekwoning
Woonoppervlak:
139 m²
Perceeloppervlak:
215 m²
Inhoud:
495 m³
Aantal kamers:
5 kamers
Aantal slaapkamers:
4 slaapkamers
Aantal woonlagen:
3 verdiepingen
Eigendom:
Eigen grond
Bouwvorm:
Bestaande bouw
Ligging:
Noord
Dak type:
Zadeldak
Dak materialen:
Pannen
Tuin:
Achtertuin
Voortuin
Parkeerfaciliteiten:
Openbaar parkeren
In eigen garage
Garage:
Aangebouwd steen
Voorzieningen:
Verwarming
Elektra
Water
Isolatie:
Muurisolatie
Dubbel glas
Isolatie:
Muurisolatie
Dubbel glas

Omschrijving

Hoekwoning met 4 slaapkamers, garage en separate berging in de Waldervaart.

Op zoek naar een ruime woning op een fijne, centrale locatie? Dan is deze ruime hoekwoning uit de jaren ’70 in de populaire wijk Waldervaart wellicht uw volgende thuis.

De woning is zeer gunstig gelegen ten opzichte van alle dagelijkse voorzieningen. In de directe omgeving vindt u (basis)scholen, diverse supermarkten en winkels. Het gezellige centrum van de stad, met restaurants, terrasjes, de bioscoop en het NS- en busstation, ligt op comfortabele fiets- en loopafstand. Een ideale plek voor gezinnen of iedereen die alles graag dichtbij heeft.

Dit huis kenmerkt zich door zijn praktische indeling en veel ruimte. Een groot pluspunt is de dubbele opbergmogelijkheid: de woning beschikt over een eigen garage én een vrijstaande stenen berging. Dit biedt volop ruimte voor hobby’s, klussen, of het stallen van uw fietsen en tuinspullen.

De woning is met veel zorg en liefde bewoond, maar is inmiddels toe aan een modernisatie. Dit biedt u de perfecte kans om de woning volledig naar eigen smaak, inzicht en wensen te verbouwen en in te richten. De degelijke basis is er, nu de kans om hier uw eigentijdse droomhuis van te maken.

Met in totaal 4 slaapkamers is dit een ideale gezinswoning. De begane grond beschikt over een gesloten keuken met een handige trapkast. De vierde slaapkamer bevindt zich op de zolderverdieping. De badkamer is eenvoudig en functioneel. Er is hier veel ruimte om te leven en te groeien.

Kortom, een royale hoekwoning op een uitstekende locatie, met veel ruimte en potentie.

Indeling:

Begane grond
Entree, hal met meterkast, toiletruimte met staand toilet en fontein, trapopgang naar de eerste verdieping.
Woonkamer, gesloten keuken met een 4-pits gaskookplaat, combimagnetron, afzuigkap en wasmachine aansluiting.

Eerste verdieping
Overloop, 3 slaapkamers waarvan 1 met wastafel en 2 met vaste kasten. Badkamer met douche, toilet en wastafel.

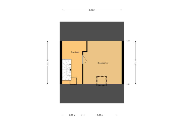
Zolderverdieping
Voorzolder met CV-ketel opstelling en bergruimte. Slaapkamer dakraam en bergruimte achter knieschot.

Tuin
Achtertuin met terras en gazon, vrijstaande stenen berging en aan de zijkant van de woning een aangebouwde garage.

Interesse gewekt? Wij nodigen u graag uit voor een bezichtiging om de mogelijkheden zelf te ervaren!

Buurt:

Waldervaart

Play Video

Bezichtiging / meer info

Reigershof 19 ,

Schagen

Wil je meer informatie over dit pand of een bezichtiging plannen? Vul het formulier in en wij nemen contact met je op.