Volg ons
A +
Verkocht

Molensingel 33

153 m²
/  391 m²
4 slaapkamers

Op zoek naar de ideale gezinswoning in een rustige, kindvriendelijke wijk? Kom dan snel kijken bij deze perfect onderhouden twee-onder-één-kapwoning aan de Molensingel 33 in Wieringerwaard!

Deel op social media:

Kenmerken

Bouwjaar: 2008
Energielabel: A +
Aanvaarding: In overleg
Soort: Eengezinswoning
Type: 2-onder-1-kap
Woonoppervlakte: 153 m²
Perceeloppervlakte: 391 m²
Inhoud: 552 m³
Aantal kamers: 5
Aantal slaapkamers: 4
Aantal woonlagen: 3
Bouwvorm: Bestaande bouw
Ligging: Noordwest

Dak type: Tentdak

Dak materialen: Pannen

Buitenruimtes: Veranda, Overkapping

Parkeerfaciliteiten: Openbaar parkeren, Op eigen terrein

Garage: Vrijstaand steen

Voorzieningen: Verwarming, Elektra, Water

Bijzonderheden: 14 Zonnepanelen, Airconditioning, Hetelucht verwarmingssysteem

Bouwjaar:
2008
Energielabel:
A +
Aanvaarding:
In overleg
Soort:
Eengezinswoning
Type:
2-onder-1-kap
Woonoppervlak:
153 m²
Perceeloppervlak:
391 m²
Inhoud:
552 m³
Aantal kamers:
5 kamers
Aantal slaapkamers:
4 slaapkamers
Aantal woonlagen:
3 verdiepingen
Bouwvorm:
Bestaande bouw
Ligging:
Noordwest
Dak type:
Tentdak
Dak materialen:
Pannen
Buitenruimtes:
Veranda
Overkapping
Parkeerfaciliteiten:
Openbaar parkeren
Op eigen terrein
Garage:
Vrijstaand steen
Voorzieningen:
Verwarming
Elektra
Water
Bijzonderheden:
14 Zonnepanelen
Airconditioning
Hetelucht verwarmingssysteem

Omschrijving

De woning is gelegen in de geliefde woonwijk ‘De Hoop’ aan een niet-doorgaande weg. U rijdt uw auto(s) gemakkelijk op de eigen oprit, waar plaats is voor meerdere auto’s. Direct naast de woning staat de vrijstaande stenen garage, ideaal voor uw hobby’s of extra opslag.

 

Binnen wordt u verrast door de lichte, tuingerichte woonkamer die direct toegang geeft tot de achtertuin via openslaande deuren. De luxe open keuken is van alle gemakken voorzien en heeft diverse inbouwapparatuur. De woning is uitgerust met een hetelucht verwarmingssysteem, dat in de zomer ook zorgt voor heerlijke verkoeling. Voor de warme dagen is er bovendien een airco aanwezig, zodat u altijd geniet van een aangenaam binnenklimaat.

 

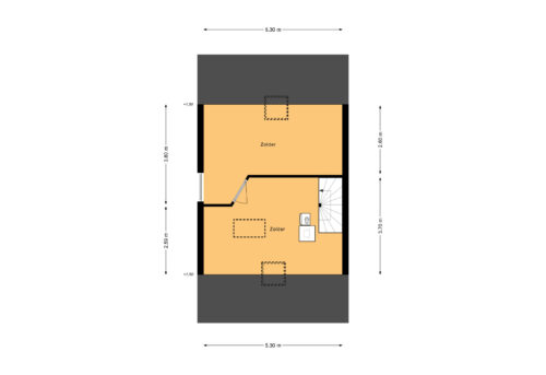
Op de eerste verdieping vindt u drie ruime slaapkamers en een moderne badkamer. De badkamer is uitgerust met een douchecabine, een vrijdragend toilet en een fraai wastafelmeubel met een dubbele wastafel. De zolder, bereikbaar via een vaste trap, biedt een vierde slaapkamer, perfect als logeerkamer, kantoor of tienerkamer. Vanuit hier is er tevens toegang tot een ruime vliering, ideaal voor extra bergruimte.

 

De zonnige achtertuin op het noordwesten zorgt ervoor dat u de hele dag van de zon kunt genieten. De sfeervolle veranda met overkapping is de ideale plek voor lange zomeravonden. En met 14 zonnepanelen op het dak bespaart u ook nog eens aanzienlijk op uw energierekening!

 

De ligging van Wieringerwaard is ideaal. In het dorp vindt u een dorpswinkel en een basisschool, perfect voor jonge gezinnen. De goede busverbinding brengt u moeiteloos naar o.a. Anna Paulowna en Schagen. Ook met de auto bent u snel op weg via de nabijgelegen uitvalswegen N249 en N248.

 

Deze woning combineert het beste van landelijk wonen met alle moderne gemakken binnen handbereik. Bent u klaar voor een nieuwe stap? Neem contact op voor een bezichtiging, wij leiden u graag rond!

 

Indeling:
Begane grond: zijentree met garderobe en meterkast, volledig betegelde toiletruimte met vrijdragend toilet en fontein, tuingerichte woonkamer met openslaande deuren naar de sfeervolle tuin met veranda en overkapping, open keuken in hoekopstelling met diverse inbouwapparatuur. Vanuit de woonkamer de trap naar de eerste verdieping.

 

Eerste verdieping: overloop, 3 comfortabele slaapkamers waarvan één met vaste kast, praktische bergruimte met aansluiting voor de wasmachine, ruime complete badkamer met douchecabine, vrijdragend toilet en wastafelmeubel met dubbele wastafel.

 

Tweede verdieping: via vaste trap bereikbaar, voorzolder met opstelling cv-ketel en veelzijdige zolderkamer, ideaal als slaap- of werkkamer. Via vlizotrap bereikbare ruime vliering.

Play Video

Bezichtiging / meer info

Molensingel 33,

Wieringerwaard

Wil je meer informatie over dit pand of een bezichtiging plannen? Vul het formulier in en wij nemen contact met je op.