Isolatie: Dakisolatie, Muurisolatie, Vloerisolatie, Dubbel glas, HR-glas
Dak type: Lessenaardak
Dak materialen: Pannen
Tuin: Achtertuin, Voortuin
Berging / schuur: Vrijstaande houten berging
Parkeerfaciliteiten: Openbaar parkeren
Voorzieningen: Verwarming, Elektra, Water
Bijzonderheden: 9 zonnepanelen
Dankzij goede isolatie en 9 zonnepanelen is dit een energiezuinige woning. De achtertuin, gelegen op het zonnige zuidwesten, heeft een achterom en een handige berging.
Indeling:
Begane grond
Entree, hal, meterkast, trapopgang, toiletruimte met vrijdragend toilet en fontein. Tuingerichte woonkamer met deur naar de achtertuin, open keuken met diverse inbouwapparatuur: een vaatwasser, koel-vriescombinatie, 4-pits gaskookplaat, afzuigkap en oven. Daarnaast is er een praktische trapkast aanwezig.
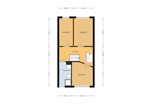
Eerste verdieping
Overloop, toegang tot 3 slaapkamers en een badkamer. De badkamer heeft een wastafelmeubel, een extra wandkast, een inloopdouche, een tweede zwevend toilet en een aansluiting voor de wasmachine. De ruimte heeft zowel natuurlijke als mechanische ventilatie.
Zolderverdieping
De zolder is bereikbaar via een vaste trap. Hier is in 2023 een dakkapel geplaatst, wat de ruimte aanzienlijk heeft vergroot. Dit is een perfecte plek voor een extra slaapkamer of hobbyruimte. De cv-ketel, omvormer voor de zonnepanelen en de WTW-installatie zijn hier netjes weggewerkt.
Interesse in deze nette, goed geïsoleerde (label A) woning met 4 slaapkamer? Neem dan snel contact op voor een bezichtiging.
Richtprijs € 375.000
(reguliere vraagprijs €390.000,-)
Wil je meer informatie over dit pand of een bezichtiging plannen? Vul het formulier in en wij nemen contact met je op.