Volg ons
Te koop

Witte Paal 157

€ 799.000,- k.k.
146 m²
/  585 m²
4 slaapkamers

Bent u op zoek naar een ruime woning waar u bedrijfsmatig kunt wonen? Dan is Witte Paal 157 dé perfecte plek voor u! Deze vrijstaande bedrijfswoning biedt niet alleen veel wooncomfort, maar ook uitstekende mogelijkheden om uw zakelijke activiteiten te combineren met wonen.

Deel op social media:

Kenmerken

Bouwjaar: 1989
Type ketel: Vaillant
Jaar ketel: 2021
Buurt: Bedrijven terrein - Witte Paal
Aanvaarding: In overleg
Soort: Eengezinswoning
Type: Vrijstaand
Woonoppervlakte: 146 m²
Perceeloppervlakte: 585 m²
Inhoud: 518 m³
Aantal kamers: 5
Aantal slaapkamers: 4
Aantal woonlagen: 2
Bouwvorm: Bestaande bouw
Ligging: Zuidoost

Isolatie: Dakisolatie, Muurisolatie, Vloerisolatie

Dak type: Zadeldak

Dak materialen: Pannen

Tuin: Zijtuin, Achtertuin, Voortuin

Parkeerfaciliteiten: Op eigen terrein

Garage: Vrijstaand steen

Voorzieningen: Verwarming, Elektra, Water

Bijzonderheden: 19 zonnepanelen

Bouwjaar:
1989
Buurt:
Bedrijven terrein - Witte Paal
Aanvaarding:
In overleg
Soort:
Eengezinswoning
Type:
Vrijstaand
Woonoppervlak:
146 m²
Perceeloppervlak:
585 m²
Inhoud:
518 m³
Aantal kamers:
5 kamers
Aantal slaapkamers:
4 slaapkamers
Aantal woonlagen:
2 verdiepingen
Bouwvorm:
Bestaande bouw
Ligging:
Zuidoost
Dak type:
Zadeldak
Dak materialen:
Pannen
Tuin:
Zijtuin
Achtertuin
Voortuin
Parkeerfaciliteiten:
Op eigen terrein
Garage:
Vrijstaand steen
Voorzieningen:
Verwarming
Elektra
Water
Isolatie:
Dakisolatie
Muurisolatie
Vloerisolatie
Isolatie:
Dakisolatie
Muurisolatie
Vloerisolatie
Bijzonderheden:
19 zonnepanelen

Omschrijving

Bij binnenkomst zult u direct de fijne sfeer van deze woning ervaren. De ruime hal is voorzien van een mooie inbouwkast voor de gaderobe. De luxe keuken vormt het hart van het huis en is voorzien van een modern kookeiland en hoogwaardige inbouwapparatuur, zoals een inductie kookplaat, koelkast, oven, vaatwasser en zelfs een quooker. Hier wordt koken een feestje!

 

De serre is een heerlijke plek om te ontspannen. Met elektra, een zonnescherm en volop lichtinval is dit een ideale ruimte om zowel overdag als ’s avonds van te genieten.

 

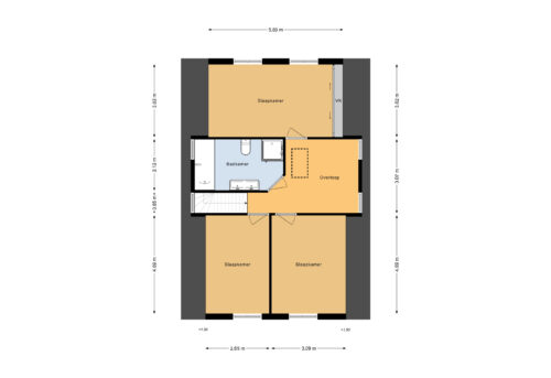
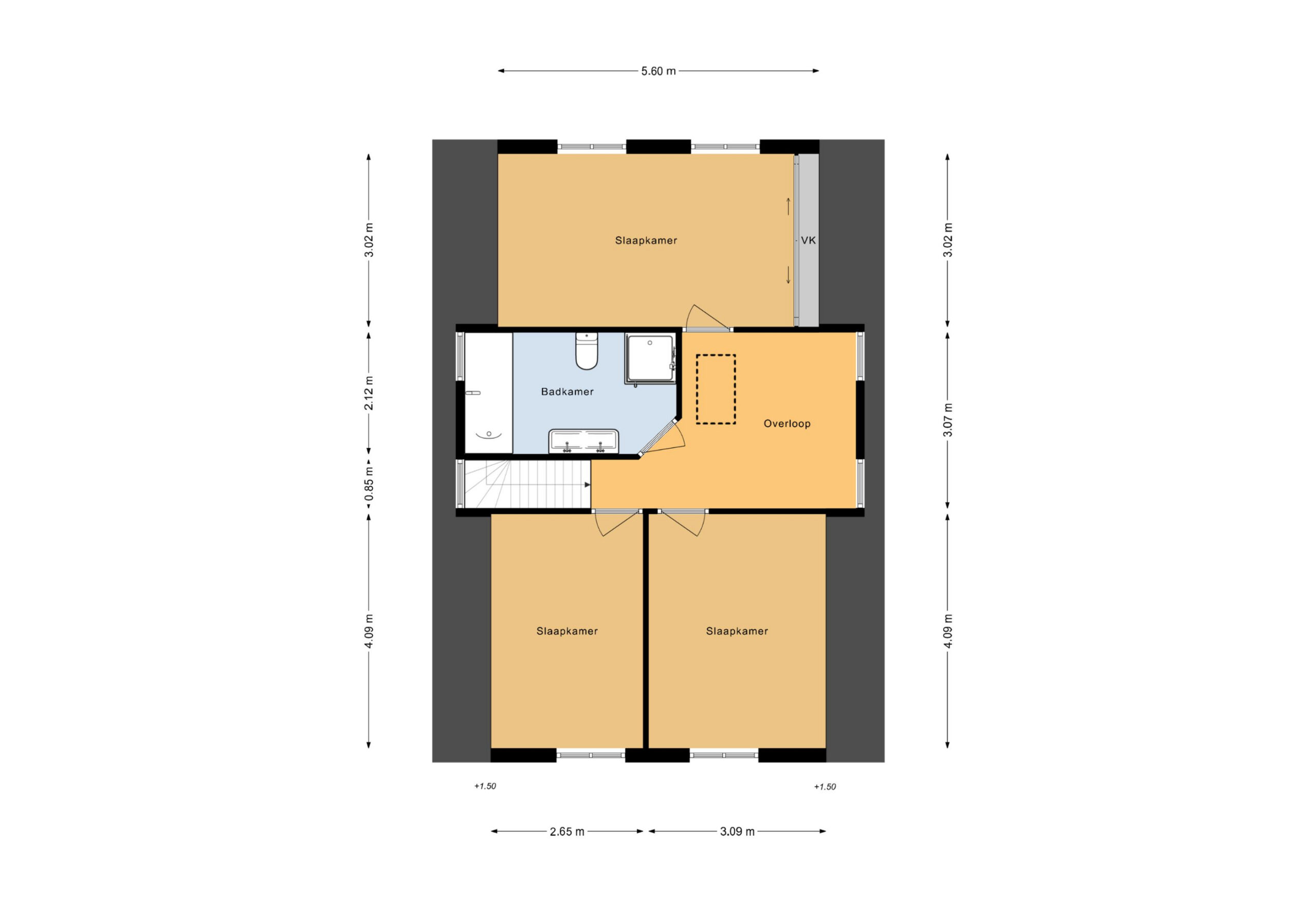
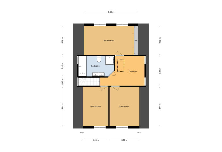
Op de eerste verdieping vindt u drie ruime slaapkamers, waarvan twee zijn uitgerust met airconditioning. Comfort staat hier centraal! De badkamer biedt alles wat u nodig heeft: een douchecabine, ligbad, wastafelmeubel met dubbele wastafel, tweede toilet en een stijlvolle designradiator.

 

Daarnaast beschikt de woning over een praktische bergzolder, bereikbaar via een vlizotrap. Ideaal voor extra opslagruimte.

 

Deze woning is voorzien van maar liefst 19 zonnepanelen, wat niet alleen bijdraagt aan duurzaamheid maar ook aan lagere energiekosten.

 

In de tuin vindt u een tuinhuis dat volledig is ingericht als extra woonruimte. Het tuinhuis heeft twee slaapkamers/kantoorruimtes en een badkamer met inloopdouche, toilet, wastafel, designradiator en een lichtkoepel. Een ideale plek voor gasten of als extra werkruimte.

 

Tevens heeft de woning een ruime garage met riante oprit voor meerdere auto’s.

 

Deze bedrijfswoning biedt niet alleen luxe en comfort, maar ook volop mogelijkheden om werk en privé te combineren. Interesse in deze moderne en goed onderhouden bedrijfswoning?

Kom snel langs en ontdek zelf wat Witte Paal 157 te bieden heeft. Wie weet wordt dit uw nieuwe thuisbasis!

Buurt:

Bedrijven terrein - Witte Paal

Play Video

Bezichtiging / meer info

Witte Paal 157,

Schagen

Wil je meer informatie over dit pand of een bezichtiging plannen? Vul het formulier in en wij nemen contact met je op.